





Kroatia, Dalmatia kysten, Split by - Split, Meje, leiligheter i nybygg
ID: 2019/81Eiendomsfordeler
- Havutsikt
- Nybygg
Fasiliteter
- Garasje
- Moderne
- Parkering
Om eiendommen
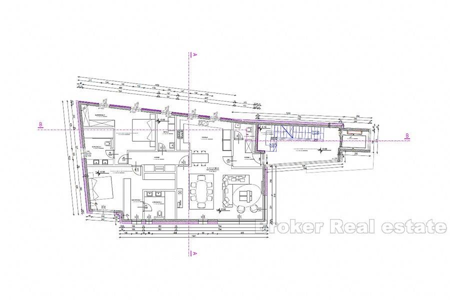
Nybygg i det mest elite Split-området Meje. Til salgs er komfortable leiligheter i et attraktivt bygg, for tiden i bygging. Byggeprosjektet vil ha to underjordiske garasjer og fire luftgulv pluss påbygg. Garasjen vil ha en heis for biler, og leilighetene blir koblet sammen med en panoramisk heis. Overflaten vil være cirka 150 m2. Det er mulighet for å kjøpe en to-roms, tre-roms eller fir-roms leilighet. Leilighetene selges i en tilstand av roh-bau (ikke ferdig), og hver leilighet vil være utstyrt med Daikin klimaanlegg.
Lokasjon
Split by, Dalmatia kysten
Split er den nest største byen i Kroatia etter hovedstaden Zagreb, den største byen i Dalmatia og den største byen på den kroatiske kysten. Den ligger på den østlige bredden av Adriaterhavet og er spredt over en sentral halvøy og dens omgivelser. Byen er et intraregionalt transportknutepunkt og populært turistmål, og er knyttet til Adriaterhavsøyene og Appennin-halvøya.
Leter du etter noe annet?





