





Kroatia, Dalmatia kysten, Primosten - Toromsleilighet med terrasse i attraktiv beliggenhet
ID: 5446/30Grunnleggende informasjon
Leveplass:63 m2
Soverom:2
Bad:2
Sjøavstand:500 m
Eiendomsfordeler
- Havutsikt
- Nybygg
Fasiliteter
- Energisertifikat
- Garasje
- Moderne
Om eiendommen
Til salgs er en vakker toromsleilighet beliggende i første etasje i en moderne bygning. Eiendommen ligger i en attraktiv beliggenhet, noe som gjør at alle leilighetene har en fantastisk havutsikt.
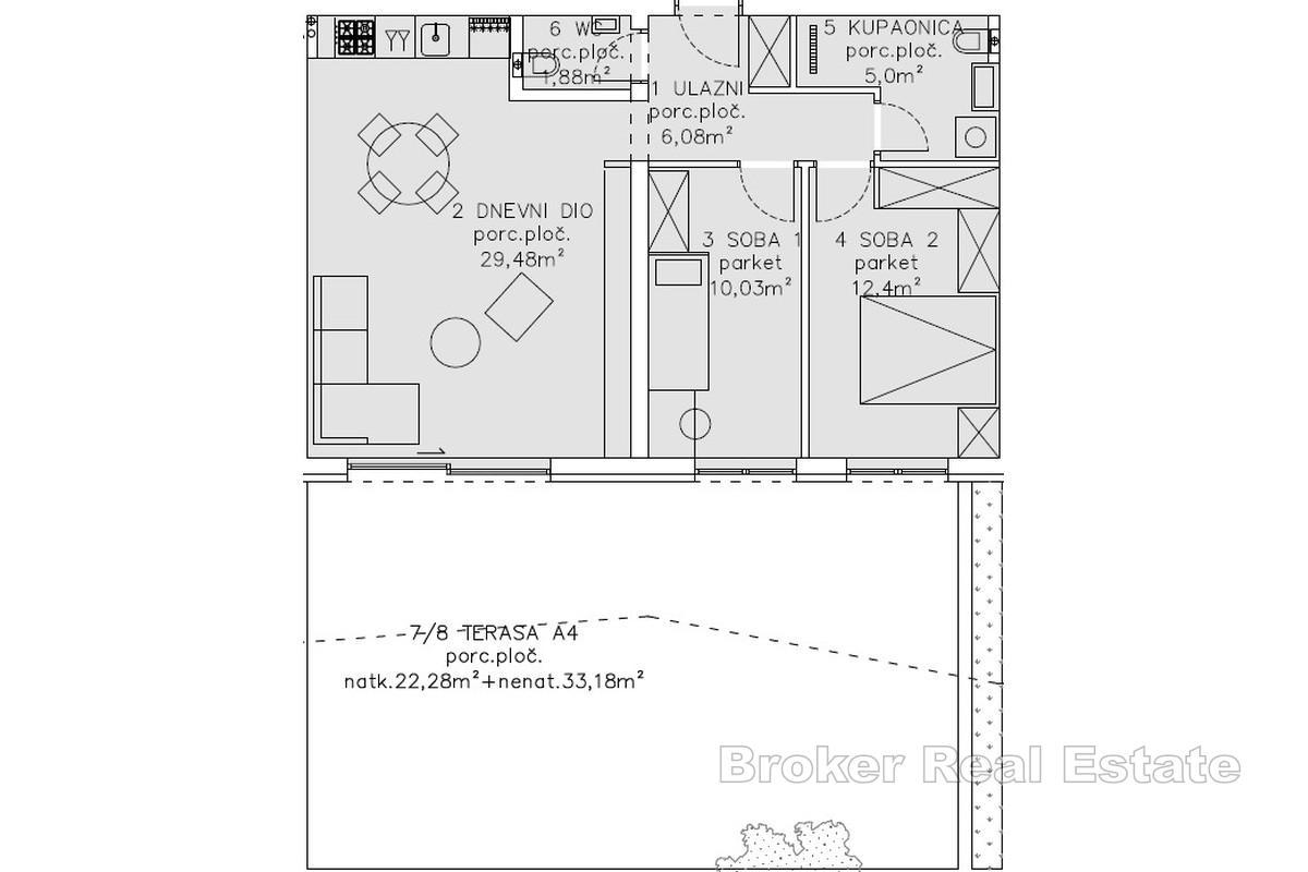
Leiligheten har litt over 63 m2 boareal, og består av to soverom, et bad og et separat toalett, samt en romslig stue som forbinder kjøkken, spisestue og stue. Fra begge soverommene, samt fra stuen, er det utgang til en delvis overbygd, romslig terrasse på ca. 20 m2.
Leiligheten har en bod og en garasjeplass på ca. 10 m2 totalt.
Materialer av høy kvalitet ble brukt under byggingen, og leiligheten er utstyrt med motoriserte rulleskodder, myggnett på alle vinduer og elektrisk gulvvarme i hele rommet, unntatt under møblene.
Denne eiendommen er en utmerket investering, ideell for turistutleie eller som et komfortabelt sted for en familieferie.
Lokasjon
Primosten, Dalmatia kysten
Primošten er en landsby og kommune i Šibenik-Knin fylke i Kroatia. Det ligger i sør, mellom byene Šibenik og Trogir, på Adriaterhavskysten. Primošten er kjent for sine enorme og vakre vingårder. Den største stranden i Primošten heter Raduča, og dens mindre del, Mala Raduča, er kåret til en av de 10 vakreste strendene i Kroatia.
Leter du etter noe annet?








