





Kroatia, Dalmatia øyene, Ciovo - Island of Ciovo - Leiligheter med svømmebasseng nær stranden og havet
ID: 2035/36Grunnleggende informasjon
Leveplass:43 m2
Land plass:50 m2
Soverom:1
Bad:1
Etasjer:1
Sjøavstand:430 m
Eiendomsfordeler
- Havutsikt
- Svømmebasseng
- Nybygg
Fasiliteter
- Energisertifikat
- Moderne
- Parkering
Om eiendommen
Bygning under bygging, beliggende i en dominerende posisjon på øya Ciovo, ikke langt fra strendene
og havet. Den består av fem etasjer med tolv leiligheter.
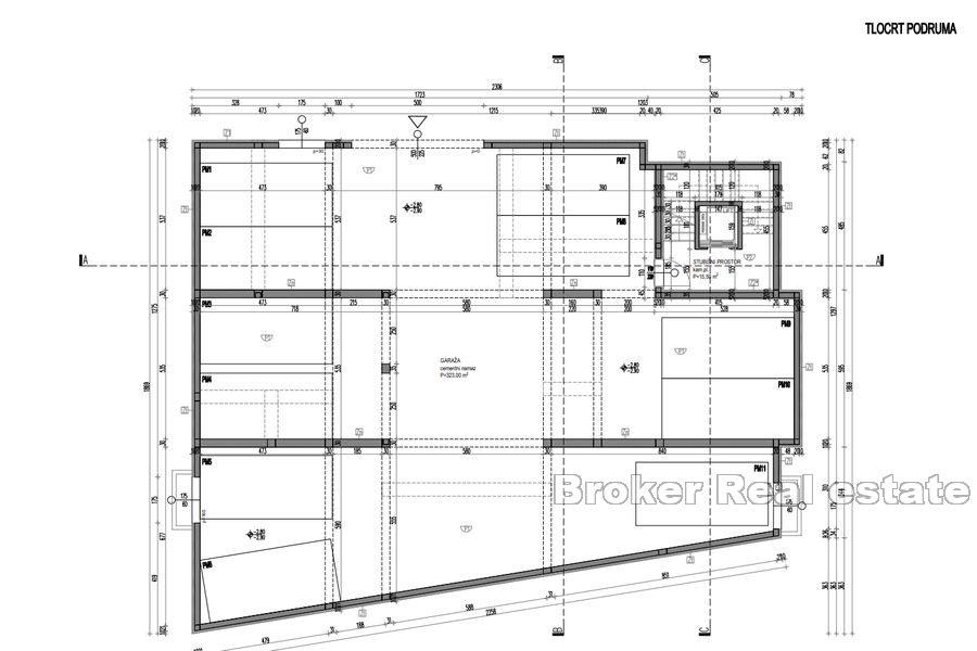
I kjeller er det garasje med parkeringsplasser for elleve leiligheter, mens en leilighet (S3) har utvendig parkeringsplass.
Garasjen er forbundet med resten av bygget med heis.
Det er tre leiligheter i hver etasje – i kjeller, første etasje, første og andre etasje.
Takterrassen med uimotståelig utsikt over havet brukes av tre leiligheter i toppetasjen.
Aircondition og gulvvarme er gitt for oppvarming og kjøling.
Fordelen er definitivt det felles svømmebassenget som ligger i bygningens gårdsplass, som er en ideell sone for avslapning og sosialt samvær om sommeren. I tillegg til boliger er leilighetene ideelle for turistutleie.
KJELLER
LEILIGHET 2:
∙ toroms leilighet 71,77 m² + terrasse 6,78 m²
∙ pris: 210 000 € – SOLGT!
LEILIGHET 3:
∙ ettromsleilighet 38,04 m²
∙ pris: 125 000 € – SOLGT!
FØRSTE ETASJE
LEILIGHET 6:
∙ ettromsleilighet 42,75 m² + terrasse 6,50 m²
∙ pris: 145 000 € – SOLGT!
1. ETASJE
LEILIGHET 9:
∙ ettromsleilighet 42,75 m² + terrasse 6,50 m²
∙ pris: 150 000 € – SOLGT!
2. ETASJE
LEILIGHET 11:
∙ toroms leilighet 71,77 m² + terrasse 12,59 m² + takterrasse 89,15 m²
∙ pris: 445 000 €
LEILIGHET 12:
∙ ettroms leilighet 42,75 m² + terrasse 6,50 m² + takterrasse 50,06 m²
∙ pris: 222 000 €
Lokasjon
Ciovo, Dalmatia øyene
Čiovo ligger sentralt i Dalmatia, og beskytter byen Trogir og Kaštela-bukten. På sin nordlige del er den koblet til fastlandet med to broer, en bro er i det gamle sentrum av Trogir, og faktisk spredte Trogir seg ut på øya. Foruten delen av Trogir, er det flere landsbyer på øya: Arbanija, Žedno, Okrug Gornji, Okrug Donji og Slatine.
Leter du etter noe annet?








