




Kroatia, Dalmatia kysten, Split by - Split - Sućidar, tre-roms leilighet
ID: 2038/45Grunnleggende informasjon
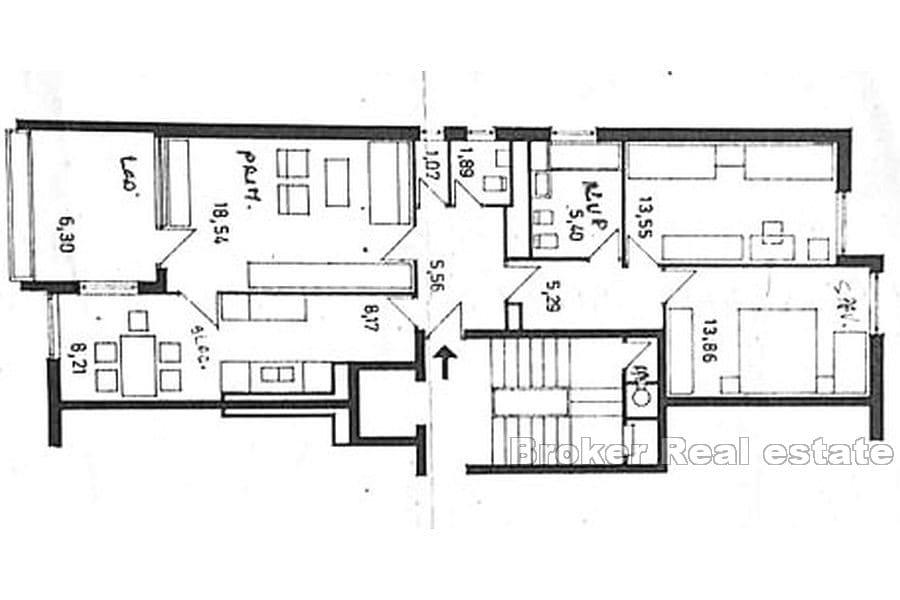
Leveplass:88 m2
Soverom:3
Bad:2
Etasjer:1
Sjøavstand:1500 m
Fasiliteter
- Energisertifikat
Om eiendommen
En tre-roms leilighet med et totalt boareal på 88 m2 med en loggia er til salgs.
Den ligger i andre etasje i en bygning med totalt 5 etasjer.
Den består av stue, kjøkken med spisestue, tre soverom, to bad og en loggia.
Leiligheten er full av dagslys.
Med sin beliggenhet og potensial, tilbyr den mange muligheter enten som turist.
Investerings- eller familieleilighet innen rekkevidde av alle viktige fasiliteter: utdanningsinstitusjoner, kafeer, restauranter…
Lokasjon
Split by, Dalmatia kysten
Split er den nest største byen i Kroatia etter hovedstaden Zagreb, den største byen i Dalmatia og den største byen på den kroatiske kysten. Den ligger på den østlige bredden av Adriaterhavet og er spredt over en sentral halvøy og dens omgivelser. Byen er et intraregionalt transportknutepunkt og populært turistmål, og er knyttet til Adriaterhavsøyene og Appennin-halvøya.
Leter du etter noe annet?





