





Kroatien, Dalmatien Inseln, Solta - Insel Šolta - Baugrundstück mit Genehmigung und Aussicht
ID: 2016/507Grundinformation
Grundstücksgrösse:800 m2
Meeresentfernung:800 m
Immobilienvorteile
- Meerblick
Über die Immobilie
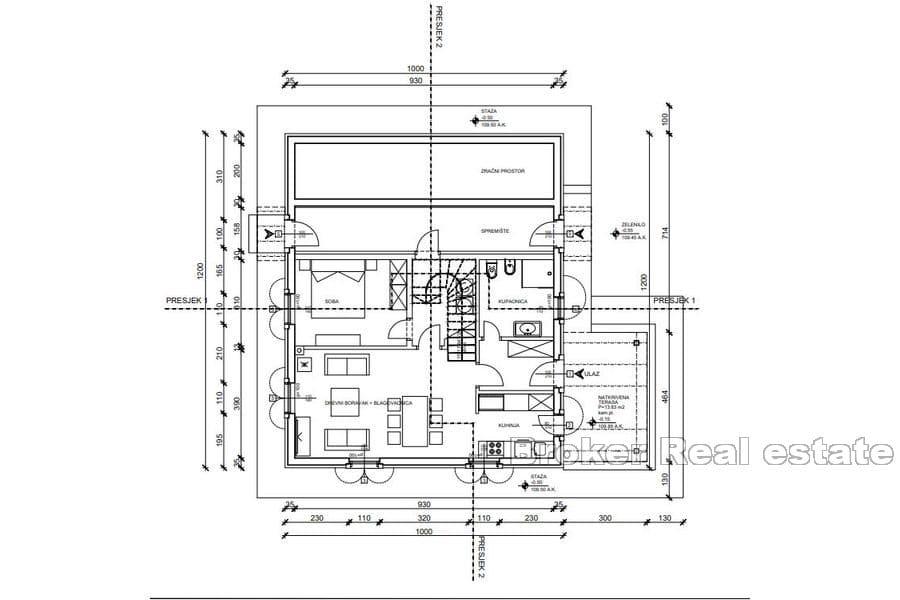
Baugrundstück in bester Lage auf der Insel Šolta, im Dorf Grohote, mit einer gültigen Genehmigung für den Bau eines Anwesens mit zwei Etagen und einem Swimmingpool und mit Blick auf das Meer, von dem aus das Land stammt ist 800 Meter entfernt.
Das Grundstück hat eine Fläche von 800 m2 und liegt in einer ruhigen Gegend mit mehreren Nachbarn. Alle Infrastrukturanschlüsse befinden sich in unmittelbarer Nähe.
Die Mikrolage der Immobilie ermöglicht die Nutzung aller zusätzlichen Einrichtungen (Laden, Bäckerei, Post…) in Gehweite der Immobilie, während die Fährverbindung nach Split nur wenige Autominuten von der Immobilie entfernt ist.
In Anbetracht dessen ist es eine hochwertige Investition auf dieser wunderschönen Insel, ideal für ein Familienferienhaus oder für ein touristisches Vermietungsgeschäft.
Standort
Solta, Dalmatien Inseln
Šolta liegt im mitteldalmatinischen Archipel, westlich der Insel Brač, südlich von Split und östlich der Drvenik-Inseln. An der Nordostküste der Insel liegen die großen Buchten Rogač und Nečujam. Das wichtigste Fischereizentrum ist Maslinica, das nur Nordwestwinden ausgesetzt ist und daher einen guten Schutz für kleinere Boote bietet.
Suchen Sie etwas anderes?




