





Hrvatska, Dalmacija otoci, Šolta - Otok Šolta - Građevinsko zemljište s dozvolom i pogledom
ID: 2016/507Osnovni podaci
Zemljište:800 m2
Udaljenost od mora:800 m
Prednosti nekretnine
- Pogled na more
O nekretnini
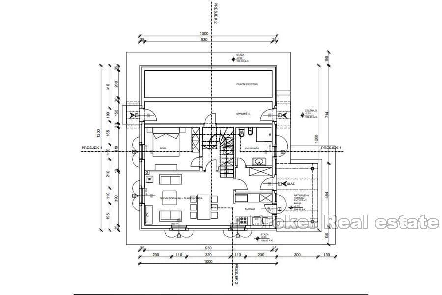
Građevinsko zemljište, nalazi se na kvalitetnoj lokaciji na otoku Šolti, u naselju Grohote, sa pravomoćnom dozvolom za izgradnju nekretnine sa dvije etaže i bazenom, te sa pogledom na more, sa kojeg je zemljište udaljena je 800 metara.
Zemljište je površine 800 m2, a nalazi se u mirnom dijelu sa nekoliko susjeda okolo. Svi infrastrukturni priključci nalaze se u blizini.
Mikrolokacija nekretnine omogućuje korištenje svih dodatnih sadržaja (trgovina, pekara, pošta…) na pješačkoj udaljenosti od nekretnine, dok je trajektna veza sa Splitom udaljena samo nekoliko minuta vožnje od nekretnine.
S obzirom na navedeno, radi se o kvalitetnoj investiciji na ovom prekrasnom otoku, idealnom za obiteljsku kuću za odmor ili za turistički najam.
Lokacija
Šolta, Dalmacija otoci
Šolta se nalazi u srednjodalmatinskom arhipelagu, zapadno od otoka Brača, južno od Splita i istočno od otoka Drvenika. Na sjeveroistočnoj obali otoka nalaze se veliki zaljevi Rogač i Nečujam. Glavno ribarsko središte je Maslinica, koja je izložena samo sjeverozapadnim vjetrovima, što je čini dobrim zaklonom za manje brodove.
Tražiš li nešto drugo?




