





Hrvatska, Dalmacija obala, Primošten - Moderan stan s pogledom na more
ID: 5443/30Osnovni podaci
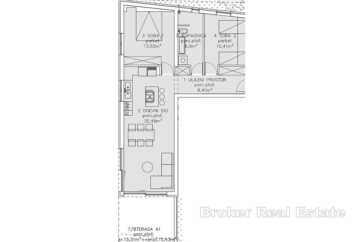
Stambeni prostor:72 m2
Sobe:2
Kupaonice:2
Katovi:1
Udaljenost od mora:500 m
Prednosti nekretnine
- Pogled na more
- Novogradnja
Pogodnosti
- Energetski certifikat
- Garaža
- Moderno
O nekretnini
Na prodaju je moderan i profinjen stan smješten na odličnoj lokaciji koja nudi prekrasan panoramski pogled na more. Nalazi se u prizemlju kvalitetno izgrađene, nove stambene zgrade.
Stan obuhvaća gotovo 72m2 udobnog životnog prostora, uz dodatnih oko 12m2 vanjskog dijela koji čine natkrivena i nenatkrivena terasa.
Raspored uključuje hodnik, dvije komforne spavaće sobe, kupaonicu, odvojeni WC te prostrani otvoreni dnevni prostor u kojem se skladno spajaju kuhinja, blagovaonica i dnevni boravak. Iz ove središnje prostorije vodi izlaz na veliku terasu s čarobnim pogledom na more.
U cijenu su uračunati ostava i garažno parkirno mjesto, što dodatno povećava praktičnost i vrijednost ponude.
Kod gradnje korišteni su visokokvalitetni i dugotrajni materijali. Stan je opremljen roletama na električni pogon, komaricama na svim prozorima te električnim podnim grijanjem postavljenim kroz gotovo cijeli prostor.
Ova nekretnina izvrsna je prilika za investiciju. Idealna je i za turistički najam i za miran obiteljski odmor.
Lokacija
Primošten, Dalmacija obala
Primošten je naselje i općina u Šibensko-kninskoj županiji, Hrvatska. Nalazi se na jugu, između gradova Šibenika i Trogira, na obali Jadranskog mora. Primošten je poznat po svojim ogromnim i prekrasnim vinogradima. Najveća plaža u Primoštenu zove se Raduča, a njen manji dio, Mala Raduča, proglašena je jednom od 10 najljepših plaža u Hrvatskoj.
Tražiš li nešto drugo?








