





Hrvatska, Dalmacija otoci, Čiovo - Vila u nizu u blizini mora
ID: 2035/228Osnovni podaci
Stambeni prostor:130 m2
Zemljište:110 m2
Sobe:3
Kupaonice:3
Katovi:3
Udaljenost od mora:290 m
Prednosti nekretnine
- Pogled na more
- Novogradnja
- Luksuzno
Pogodnosti
- Energetski certifikat
- Moderno
- Parking
O nekretnini
Moderna vila u nizu u blizini mora smještena na povišenom terenu s panoramskim pogledom na more i sam otok. Nalazi se na jednom od poželjnijih područja na Jadranu, idealnom zbog toga što se radi o mirnom mjestu te zbog blizine zračne luke od svega 9 km te grada Splita.
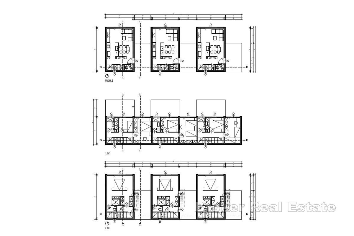
Vila je sjeverne orijentacije i ima oko 130 m² stambene površine. Na prvoj etaži se nalazi toalet te dnevni prostor koji je otvorenog koncepta. Iz tog dijela se izlazi u vrt. Unutarnje stubište vodi na drugu etažu gdje se nalaze dvije spavaće sobe, natkrivena terasa i kupaonica, dok je na zadnjem katu master spavaća soba s walk-in ormarom i kupaonicom te privatnom terasom.
Grijanje i hlađenje je omogućeno putem klima uređaja u svakoj prostoriji te podnog grijanja u kupaonicama. Osigurano je i vanjsko natkriveno parking mjesto, a objekt se prodaje nenamješten.
Blizina svih potrebnih sadržaja te mir i magičan pogled na more su ono što daje ovoj nekretnini na vrijednosti.
Lokacija
Čiovo, Dalmacija otoci
Čiovo se nalazi u srednjoj Dalmaciji, štiteći grad Trogir i Kaštelanski zaljev. Svojim sjevernim dijelom povezan je s kopnom s dva mosta, jedan most je u staroj jezgri Trogira, a zapravo se dio Trogira prostire na otoku. Osim dijela Trogira, na otoku se nalazi nekoliko naselja: Arbanija, Žedno, Okrug Gornji, Okrug Donji i Slatine.
Tražiš li nešto drugo?





