





Chorwacja, Dalmacja wybrzeże, Kastela, Kaštel Novi - Spokojna działka budowlana z zatwierdzonym projektem
ID: 2041/116Podstawowe informacje
Przestrzeń lądowa:1300 m2
Odległość morska:700 m
Zalety nieruchomości
- Widok morza
O nieruchomości
Ta działka budowlana o powierzchni 1300 m² z ważnym pozwoleniem na budowę to doskonała okazja dla osób pragnących stworzyć elegancki dom w spokojnym i słonecznym otoczeniu. Chociaż działka nie ma obecnie bezpośredniego widoku na morze, zatwierdzony projekt przewiduje, że przyszłe piętra będą oferować piękne widoki na morze i okoliczny krajobraz.
Dzięki regularnemu kształtowi działka pozwala na efektywne planowanie i optymalne wykorzystanie przestrzeni. Do działki prowadzi zadbana droga dojazdowa, a cała kluczowa infrastruktura – prąd, woda i kanalizacja – znajduje się w bezpośrednim sąsiedztwie.
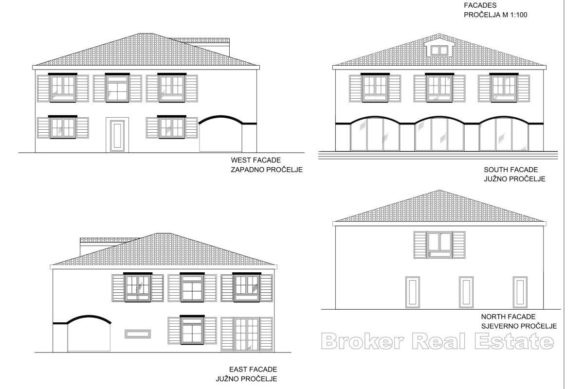
Zatwierdzony projekt przewiduje dom o powierzchni użytkowej około 400 m², przemyślanie rozplanowany na parterze i pierwszym piętrze, stanowiący idealną bazę dla komfortowego i eleganckiego domu. Na tym etapie możliwa jest całkowita zmiana projektu. Działkę można podzielić na dwie części i wybudować dwie oddzielne nieruchomości.
Położona w spokojnej okolicy, oferującej prywatność i mnóstwo naturalnego światła, działka jest jednocześnie dobrze skomunikowana ze wszystkimi udogodnieniami niezbędnymi do codziennego życia. Sklepy, szkoły, plaże i transport publiczny znajdują się w pobliżu, zapewniając idealną równowagę między odosobnieniem a wygodą.
Dzięki swojej przestronności, ważnemu pozwoleniu na budowę i atrakcyjnej lokalizacji, działka oferuje znaczny potencjał inwestycyjny. Niezależnie od tego, czy planujesz ją zaadaptować na luksusową willę z basenem, spokojny dom wakacyjny, czy nowoczesną rezydencję rodzinną, stanowi ona wyjątkową okazję na rynku.
Lokalizacja
Kastela, Dalmacja wybrzeże
Kaštela to miasto będące skupiskiem siedmiu odrębnych osiedli, zarządzanych jako jedna gmina. Miasto położone jest na północny zachód od Splitu, na zachód od Solina i na wschód od Trogiru, na środkowym wybrzeżu Dalmacji. Region Kaštela ze swoim śródziemnomorskim klimatem, malowniczym krajobrazem i wyjątkowym środowiskiem naturalnym przyciągał ludzi od czasów prehistorycznych.
Szukasz czegoś innego?








