





Chorwacja, Dalmacja Wyspy, Korcula - Wyspa Korčula - Nieruchomość w świetnej lokalizacji nad morzem
ID: 5278/30Podstawowe informacje
Przestrzeń życiowa:182 m2
Przestrzeń lądowa:645 m2
Sypialnie:9
Łazienki:19
Podłogi:4
Odległość morska:10 m
Wybrzeże
Zalety nieruchomości
- Basen
- Widok morza
Udogodnienia
- Certyfikat Energetyczny
- Parking
O nieruchomości
Na sprzedaż intrygująca nieruchomość na wyspie Korčula, położona w atrakcyjnej lokalizacji nad morzem. Został zbudowany w 1920 roku i znajduje się na działce o powierzchni 645 m2. Orientacja budynku jest południowo-wschodnia.
Jest to przebudowa istniejącego budynku. Obecna wielkość nieruchomości to 182 m2, ale posiada pełną dokumentację projektową oraz pozwolenie na budowę budynku głównego i pomocniczego.
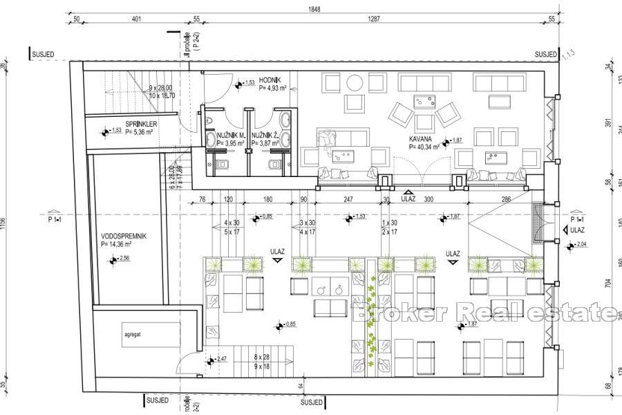
Zgodnie z projektem planowana jest budowa mniejszego hotelu z restauracją. Składa się z parteru, dwóch pięter, galerii i restauracji przed domem.
Parter składa się z dwóch oddzielnych części, które są połączone wspólnym wejściem. W jednej części kawiarnia z tarasem i dwoma przylegającymi toaletami, w drugiej restauracja z jadalnią, kuchnią, dwoma toaletami, dwoma magazynami, pomieszczeniem z maszynownią oraz wellness z sauną , jacuzzi, wanną z hydromasażem oraz dwiema łazienkami.
Na piętrze znajdują się trzy sypialnie, z których każda posiada własną łazienkę oraz wyjście na balkon. Na piętrze znajduje się również recepcja z dwoma toaletami oraz wyjściem na taras z miejscem do opalania i basenem.
Na drugim piętrze znajdują się cztery sypialnie, każda z własną łazienką i wyjściem na balkon.
Wewnętrznymi schodami można dostać się na ostatnie piętro, galerię, na której znajdują się dwie sypialnie z własnymi łazienkami, dwie toalety, pralnia oraz świetlica do spędzania czasu.
Nieruchomość posiada dwa wejścia, jedno od strony głównej, od strony wschodniej, drugie od strony zachodniej, od bocznej ulicy. Posiada dwa miejsca parkingowe przed podwórkiem. Znajdują się one w pobliżu publicznej plaży i lokalnego spa.
Lokalizacja
Korcula, Dalmacja Wyspy
Wyspa Korčula należy do archipelagu środkowej Dalmacji, oddzielonego od półwyspu Pelješac wąską cieśniną Pelješac. Główne osady na wyspie to miasta Korčula, Blato i Vela Luka. Wioski wzdłuż wybrzeża to Brna, Račišće, Lumbarda i Prižba; W głębi lądu znajdują się Žrnovo, Pupnat, Smokvica i Čara. Klimat jest śródziemnomorski.
Szukasz czegoś innego?




