





Kroatien, Dalmatiens öar, Ciovo - Ön Ciovo, hus med havsutsikt
ID: 2019/60Basinformation
Markutrymme:1374 m2
Sovrum:5
Badrum:5
Golv:3
Avstånd till havet:100 m
Fastighetsfördelar
- Havsutsikt
Bekvämligheter
- Energicertifikat
- Parkering
Om fastigheten
Till salu är ett hus med en stor trädgård och ett bygglov för en modern villa med pool. Markområdet är 1374m2.
Fastigheten ligger i en mindre plats på ön Ciovo. Placeringen av huset i mitten av platsen är väldigt intressant, det är 100 meter från stranden och har en utmärkt havsutsikt. Även om vi inte kan säga att den första raden till havet, har denna fastighet nästan alla funktioner i huset första raden till havet.
Framför det finns inget annat hus, det har en utmärkt havsutsikt, alla faciliteter ligger i omedelbar närhet. För denna fastighet har ett giltigt bygglov erhållits och alla verktyg har betalats.
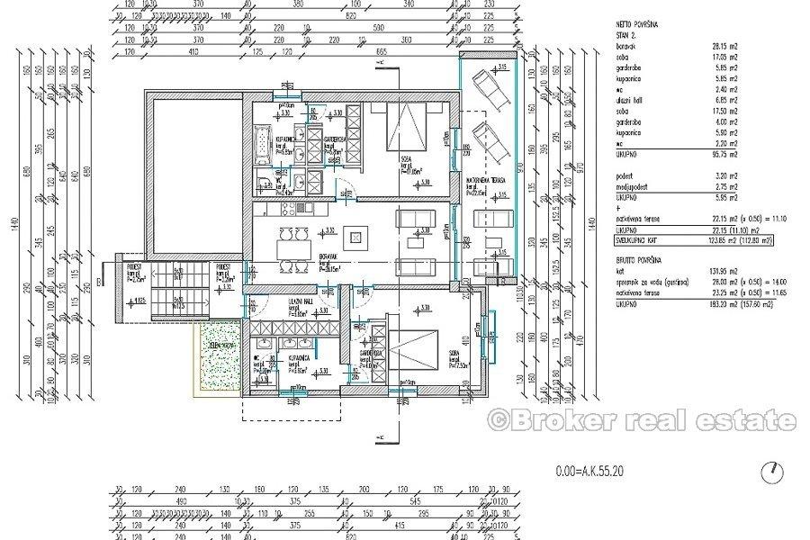
Investeraren kan gå till jobbet väldigt snabbt. Projektet består av bottenvåning, första och andra våningen, pool, ladugård och utomhusparkering. På bottenvåningen på 120 m2 av nätytan är det tänkt att bygga ett rekreationsområde, turkisk bastu, finsk bastu, toalett, tvättstuga, vardagsrum med kök och ett rum med badrum. På första våningen är utformad en bekväm lägenhet med 2 sovrum på 113m2 netto. Lägenheten består av två sovrum, alla med egen garderob och badrum, vardagsrum med kök och matsal och täckt terrass. Andra våningen är utformad nästan samma lägenhet som på första våningen endast med större terrasser. På toppen, istället för taket, den fantasifulla platta terrassen. Utmärkt egendom i ett vackert läge med bygglov och ren egendom.
Plats
Ciovo, Dalmatiens öar
Čiovo ligger i centrala Dalmatien och skyddar staden Trogir och Kaštelabukten. På sin norra del är den ansluten till fastlandet med två broar, en bro är i den gamla stadskärnan i Trogir, och en del av Trogir breder ut sig på ön. Förutom delen av Trogir finns det flera byar på ön: Arbanija, Žedno, Okrug Gornji, Okrug Donji och Slatine.
Letar du efter något annat?








