





Chorwacja, Dalmacja Wyspy, Solta - wyspa Solta. apartament
ID: 2014/60Podstawowe informacje
Przestrzeń życiowa:54 m2
Sypialnie:2
Łazienki:1
Podłogi:1
Odległość morska:200 m
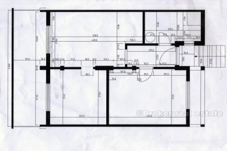
O nieruchomości
Mieszkanie znajduje się na 1-go piętrze środku budynku. Od morza wynosi 200 m. Składa się z: 49,32 m2 pokój dzienny z kuchnią i jadalnią, dwóch sypialni, łazienki i przedpokoju, i odpowiedniego tarasu 12,10 m2 i schody z podestem 3,54 m2. tj.Łączna powierzchnia 53,29 m2 rachunkowości Mieszkanie jest w pełni umeblowane i nowo urządzone, sprzedawane z lub bez namiještaj negocjacji.Odległość do plaży 200 m, posiada miejsce parkingowe bezpośrednio nad mieszkaniu (nie zawarte w cenie).Mieszkanie charakteryzuje się szkła siana, dużo słońca svejtlosti i przestronny balkon przez cały dzień radości.
Lokalizacja
Solta, Dalmacja Wyspy
Šolta położona jest w archipelagu środkowej Dalmacji, na zachód od wyspy Brač, na południe od Splitu i na wschód od wysp Drvenik. Na północno-wschodnim wybrzeżu wyspy znajdują się duże zatoki Rogač i Nečujam. Głównym ośrodkiem rybackim jest Maslinica, która narażona jest jedynie na wiatry północno-zachodnie, co czyni ją dobrym schronieniem dla mniejszych łodzi.
Szukasz czegoś innego?





