





Chorwacja, Dalmacja wybrzeże, Peljesac - Nowoczesna willa w zaawansowanej fazie budowy z widokiem
ID: 2016/636Podstawowe informacje
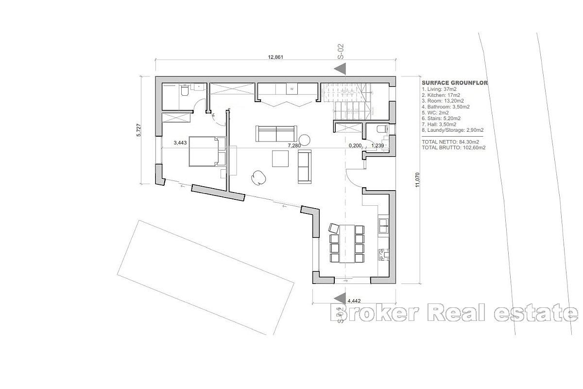
Przestrzeń życiowa:162 m2
Przestrzeń lądowa:629 m2
Sypialnie:4
Łazienki:3
Odległość morska:100 m
Zalety nieruchomości
- Nowoczesna
- Widok morza
Udogodnienia
- Certyfikat Energetyczny
- Nowy build
O nieruchomości
Nowoczesna willa w zaawansowanej fazie budowy, z widokiem na morze, na sprzedaż, położona w południowej części półwyspu Pelješac.
Willa rozciąga się na dwóch piętrach i ma całkowitą powierzchnię mieszkalną 162 m². Zaprojektowano go z czterema przestronnymi sypialniami i trzema łazienkami, zapewniając wygodną i funkcjonalną przestrzeń dla rodziny lub na luksusowe wakacje.
Działka, na której powstaje willa, ma powierzchnię całkowitą 629 m², regularny prostokątny kształt, położona jest w spokojnej dzielnicy mieszkalnej, bez wielu sąsiadów w bezpośrednim sąsiedztwie, co zapewnia prywatność i spokój. Willa zostanie wybudowana w wysokim standardzie roh-bau, a ostateczny wygląd zostanie pozostawiony nowemu właścicielowi, który może wybrać materiały i wystrój według własnych życzeń.
Lokalizacja jest wyjątkowo atrakcyjna, gdyż od morza i plaży dzieli nas zaledwie 100 metrów. Dodatkowe udogodnienia, takie jak sklepy i restauracje, znajdują się w niewielkiej odległości, zapewniając wygodę i komfort codziennego życia.
Ze względu na rzadką dostępność tej lokalizacji i duży potencjał rozwojowy, nieruchomość ta stanowi doskonałą okazję dla nabywców, którzy preferują Pelješac jako cel podróży w poszukiwaniu luksusowych nieruchomości.
Lokalizacja
Peljesac, Dalmacja wybrzeże
Pelješac to półwysep w południowej Dalmacji w Chorwacji. Od przesmyku rozpoczynającego się w Ston do szczytu przylądka Lovišta ma długość 65 km. Most Pelješac rozciąga się na kanale morskim pomiędzy Komarną na północnym lądzie a półwyspem Pelješac, przechodząc w ten sposób całkowicie przez terytorium Chorwacji i omijając wszelkie przejścia graniczne z Bośnią i Hercegowiną w Neum.
Szukasz czegoś innego?






