





Хорватия, Далмация побережье, Vodice - Квартира на первом этаже в новом здании
ID: 2043/210Основная информация
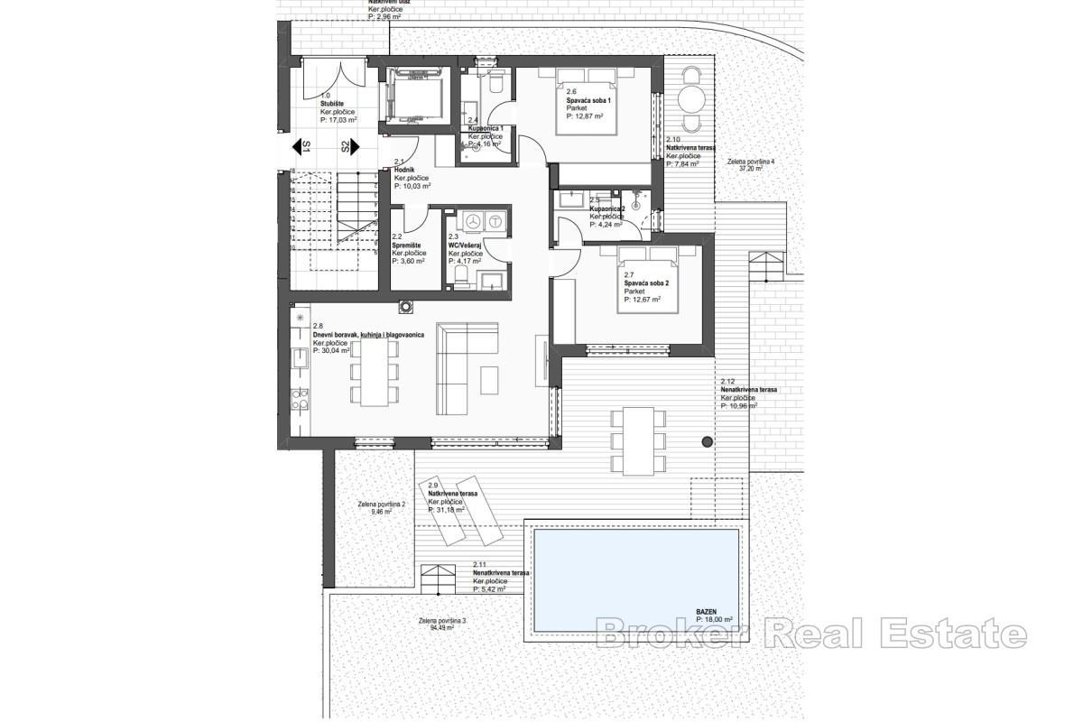
Жилое пространство:112 m2
Сухопутное пространство:180 m2
Спальни:2
Ванные комнаты:3
Расстояние до моря:380 m
Преимущества недвижимости
- Bид на море
- Бассейн
- Новостройка
- Роскошная
Удобства
- Cтоянка
- Современная
- Энергетический сертификат
О собственности
В привлекательном и тихом месте расположена элегантная квартира на первом этаже в новом высококачественном здании. Эта квартира является частью небольшого жилого комплекса всего с шестью квартирами, что обеспечивает большую приватность. Квартира особенно ценна благодаря просторному саду площадью 180 м2 с террасами, парковочному месту и бассейну площадью 18 м2, идеально подходящему для отдыха на свежем воздухе.
Общая полезная площадь с учетом коэффициентов составляет 112 м2, а полезная жилая площадь — 81 м2. Квартира состоит из прихожей, ведущей в просторную гостиную площадью 30 м2, где кухня, столовая и гостиная объединены в функциональное пространство. Гостиная имеет выход на террасу и в благоустроенный сад. Две спальни с ванными комнатами, дополнительный туалет, прачечная и кладовая делают эту квартиру чрезвычайно практичной для повседневной жизни.
Высококачественная конструкция, современный дизайн и тихое местоположение делают эту недвижимость отличным выбором для семейного проживания.
Местоположение
Vodice, Далмация побережье
Водице — город, муниципалитет и порт в Шибенско-Книнской жупании, Хорватия. Бывшая рыбацкая деревня превратилась во второй половине 20-го века в туристический объект, когда она регулярно входила в число самых посещаемых мест в Далмации. Водице расположен в широком заливе, в 11 км к северо-западу от Шибеника, в 85 км от Сплита и в 62 км к юго-востоку от Задара.
Вы ищете что-то еще?






