





Croatie, Côte de Dalmatie, Primosten - Appartement T3 avec terrasse et vue mer
ID: 5445/30Informations de base
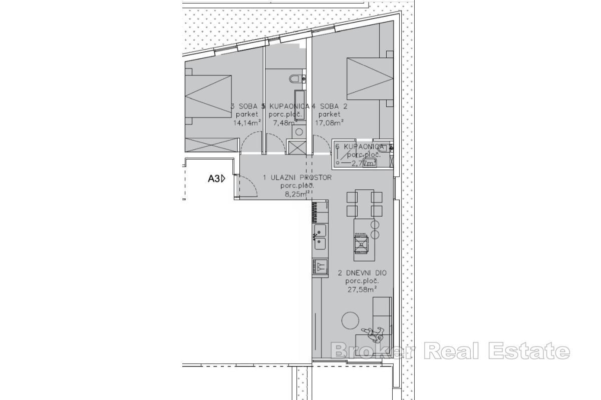
Espace vital:75 m2
Chambres:2
Salles de bain:2
Distance de la mer:500 m
Avantages immobiliers
- Vue sur la mer
- Nouvelle construction
Commodités
- Certificat énergétique
- Garage
- Moderne
- Parking
À propos de la propriété
Nous proposons à la vente un bel appartement T3 situé dans un immeuble neuf. Grâce à son emplacement, il bénéficie d’une magnifique vue mer.
La surface habitable totale est de 75 m². Il se compose de deux chambres spacieuses, deux salles de bains et une pièce à vivre combinant salon, cuisine et salle à manger. Le séjour donne accès à une terrasse partiellement couverte d’environ 8 m².
L’appartement comprend un garage et un cellier.
Construit avec des matériaux de haute qualité, l’appartement est également équipé de volets roulants motorisés, de moustiquaires à toutes les ouvertures et d’un chauffage au sol électrique présent dans tout l’appartement (sauf sous les meubles fixes).
Cet appartement représente un investissement idéal, que ce soit pour la location saisonnière ou comme pied-à-terre pour des vacances en famille.
Emplacement
Primosten, Côte de Dalmatie
Primošten est un village et une municipalité du comté de Šibenik-Knin, en Croatie. Elle est située au sud, entre les villes de Šibenik et Trogir, sur la côte Adriatique. Primošten est célèbre pour ses immenses et magnifiques vignobles. La plus grande plage de Primošten s'appelle Raduča et sa partie plus petite, Mala Raduča, est élue l'une des 10 plus belles plages de Croatie.
Vous cherchez autre chose?








