





Croatie, Iles de Dalmatie, Hvar - Nouvelle construction - Appartement moderne avec loggia
ID: 2051/37Informations de base
Espace vital:60 m2
Espace terrestre:65 m2
Chambres:2
Salles de bain:2
Planchers:1
Distance de la mer:300 m
Avantages immobiliers
- Nouvelle construction
Commodités
- Certificat énergétique
- Moderne
- Parking
À propos de la propriété
Sur l’île de Hvar, dans un village paisible réputé pour sa baie pittoresque et abritée et son port de plaisance moderne, un nouveau complexe résidentiel est en cours de construction, composé de 16 appartements.
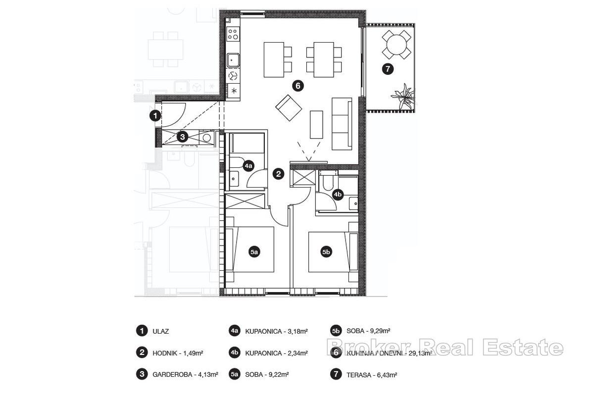
Au premier étage du bâtiment A se trouve l’appartement S3. Il comprend une entrée avec dressing, un spacieux séjour ouvert avec cuisine et salle à manger, donnant sur une loggia couverte. Au rez-de-chaussée se trouvent une salle de bains et un couloir desservant deux chambres, dont la principale dispose de sa propre salle de bains.
La construction a été réalisée avec des matériaux et des équipements haut de gamme : béton armé, isolation thermique de la façade, triple vitrage, volets roulants électriques, chauffage au sol dans les salles de bains, climatisation et céramiques de qualité.
Le projet comprend des places de parking extérieures, dont certaines seront couvertes.
La fin des travaux est prévue pour le début de l’été 2026.
Situé à seulement 300 mètres de la mer, ce projet est à proximité immédiate de toutes les commodités : commerces, restaurants, cafés, port de plaisance et promenade.
Grâce à son emplacement privilégié et à son environnement paisible, il constitue un choix idéal pour un séjour confortable tout au long de l’année ou pour un investissement locatif touristique.
Emplacement
Hvar, Iles de Dalmatie
Hvar est une île croate de la mer Adriatique, située au large de la côte dalmate, entre les îles de Brač, Vis et Korčula. Ses coteaux sont couverts de forêts de pins, avec des vignes, des oliviers, des vergers fruitiers et des champs de lavande dans les zones agricoles. Le climat est caractérisé par des hivers doux et des étés chauds avec de nombreuses heures d'ensoleillement.
Vous cherchez autre chose?





